中鼎设计微信服务号

在房地产行业飞速发展的今天,住宅身价屡攀新高,成为市场上炙手可热的建筑类型。但如何在千篇一律的商品房中脱颖而出,成为区域标杆项目,则是建筑设计师思考的重点与难点。
中国·南阳三川玖龙台高端居住社区项目可以说是住宅项目中的成功案例。该项目由中鼎设计股东设计单位加拿大科可兰(KKL)事务所主持设计,位于南阳市白河大道东侧,项目总用地34965.2平方米,地上容积率2.0。
设计上打破区域内沿白河大道平行或垂直的建筑布局方式,转而用一种与城市整体肌理更加自然与协调的方式进行设计,打造出南阳具有标志性的地标建筑,并且建成后当即售罄,得到了市场认可,可谓“双赢”。

▲中国·南阳三川玖龙台实景图@KKL
01
何谓“高端”?
2010年前后,KKL与三川置业确定了合作关系。当时,三川置业购置水南桃源宝地,立志要把南阳·山川玖龙台打造成南阳经典高端住宅。
何为高端?KKL设计团队思考良久:昂贵的石材、华丽的设计,为项目定制一个哥特式、巴洛克风格,这就高端了吗?也许,通过这种方式很容易将项目打造得“贵气十足”,但终究不是甲方和KKL想要的效果。最后,设计团队将其理解为:一种专属的、独特的生活方式与城市意象。
基于这一理念,如何站在城市的视角去创造独特且合理的建筑内容和形式就成为设计团队重点关心的问题。

▲中国·南阳三川玖龙台实景图@KKL
02
旋转建筑单体角度
打造独特的南阳住宅
三川玖龙台紧邻白河,场地地貌基本平坦,现状用地为农田,比白河大道约低下3米左右。基地周边现状开发度较低,因场地西侧紧邻白河,整体基地拥有非常良好的视线和外部景观,为项目打造南阳地标建筑创造了条件。

▲项目用地与周边城市环境@KKL
沿白河大道的地块,普遍采用一种与道路垂直或平行的建筑布局方式来进行设计,这种方式看起来似乎是一种对城市肌理的延续,但却难以从理性的角度获得真正的融合性。

▲项目实景图@KKL
于是设计团队采用了一种建筑与场地斜交的方式进行布局,并且通过局部楼座的旋转,使得建筑的主要立面可以接受到更充足的阳光,场地获得更灵活的布局,朝向白河大道一侧,楼座的布局自然的形成了一个开敞空间,以欢迎的姿态,将城市主干道白河大道与城市母亲河白河的景观吸引到项目内部,不但令整个地块与城市发生了关系,还使建筑获得了更适宜的景观与日照条件。



▲项目实景图@KKL
正如设计团队所料,这种“离经叛道”的布局方式一提出,马上被当地相关政府部门所质疑:“其他地块的建筑物,都是平行或者垂直白河大道的,整整齐齐,而这个方案的布局可能会打乱整体的肌理,而且也不利于建筑物沿大道形成标志性的界面。”针对这种质疑,设计团队通过大量的分析图、动画模拟以及视频进行了认真的研究和分析,并向当地政府部门做了详尽的汇报和沟通,最终,设计方案全票通过审查,才使得这个理念最终落地成型。



▲项目模型图@KKL
03
下沉广场
提供娱乐、私密性空间
建筑用地与白河大道之间有50米市政绿地,并且与道路存在3米的自然高差,设计中充分利用了这些现状因素。利用场地高差设计了一个中心下沉空间,用于布局社区内大量的公共服务功能,为业主提供星级酒店标准的生活服务,打造独一无二的生活场景与体验。


▲项目总图设计草图@KKL
同时利用50米的市政绿地打造丰富的活动场地,与下沉广场入口相连,充分利用资源提升项目品质。住区车行线设置为单行线,并通过沿住区周边的环路直达每一栋住宅的门厅。

▲主入口设计草图@KKL
下沉广场设有标高低于城市干道的高端会所,利用尺度宜人的景观台地,以露天剧场的形式将人们引导往下沉广场和社区会所。这样的处理手法,既增强了商业价值,又将较吵闹的公共活动空间与需要安静环境的生活空间利用高差自然进行了限定,营造出更加丰富的社区形态。

▲下沉层的公共服务功能设计草图@KKL
住区的主要绿地位于3米高的景观平台上,是一种中间高,四周低的竖向布局,这种布局可以提升住区品质感和外部形象,积极地将人们的回家方式演绎得丰富、尊享,强化住区住户的归属感和仪式感。

▲市政绿地规划设计草图@KKL
▲楼栋入口设计草图@KKL
04
新一代“垂直森林”
诗意的栖居
“栖居于山水之间”是中国人最向往的生活状态,也是当代最高品质的居住体验追求,当然也是设计师打造本项目的核心原则之一。

▲中国·南阳三川玖龙台四、六号楼立面效果图@KKL
建筑的层高设计为市场上极为罕见的3.3米,并且在每层通长的露台上为每一户的业主提供一个“空中花园”,可允许种植花卉、乔木等绿植,并设计自动滴灌系统为植物提供日常护理。
花房中植入大型乔木,真正将院落和绿植搬到空中,纵然身在闹市亦可享受宁静的田园生活,这种生活方式是业主所向往的。

▲项目分析图@KKL
05
1000m²空中别墅
构建高端圈层生活
豪宅,不仅是高端圈层生活的符号,更是一种独一无二的生活方式,而“空中别墅”就是这种符号与方式的极致体验。在玖龙台的设计中,团队完全抛弃了市场上常见的户型设计方式,而是从高端圈层生活的本质出发进行生活场景的重塑。
项目中的主力户型为450㎡,楼王(1#楼)提供600~700㎡的户型,顶层更是设计了一套超1000㎡的复式空中别墅,并带空中花园与无边泳池,是南阳市乃至中原地区高端圈层的私享领地。

▲顶层空中别墅无边泳池节点剖透视设计图@KKL
当然,“大”并不代表“豪”,精心设计的生活空间与场景才是核心。设计中抛弃了传统的以客厅+卧室作为核心内容的布局方式,而是以一系列的活动空间作为核心生活区,包括会客厅、起居厅、家庭厅、活动室、钢琴房、书房、中餐厅、西餐厅等等。业主不仅可以真正享受四代同堂的天伦之乐,甚至可以选择周末闲暇时光,召集一群朋友开启夏日狂欢party。玩尽兴了,再去花房休憩,左拥繁华,右享安谧。

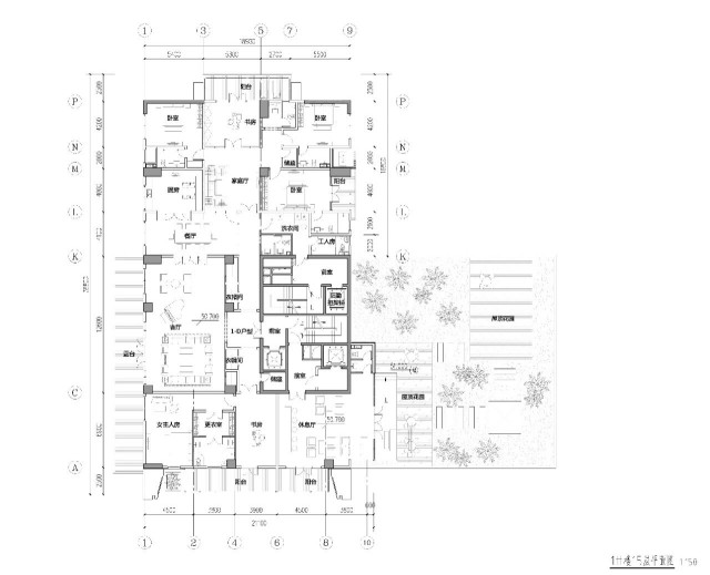
▲1#楼15层平面图@KKL

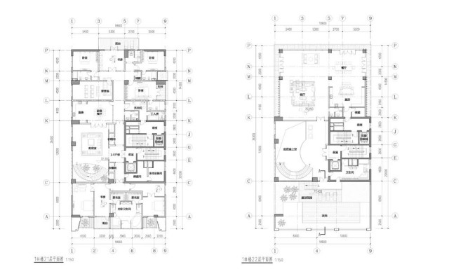
▲2#楼13-14层平面图@KKL

▲1000㎡空中别墅的首层及二层户型图@KKL
从南阳·山川玖龙台设计创作开始,已经历了10年。住宅建成至今,业主对项目的称誉从未停止。而那些经过白河大道的司机和行人,也永远记住了这座独特的建筑。一座住宅的成功莫过于此,若想在市场和城市功能中取得双赢,思考如何站在城市的视角去创造独特且合理的建筑内容和形式,是关键的一点。