中鼎设计微信服务号


▲洛带中国艺库一期规划设计鸟瞰效果图
洛带中国艺库项目位于四川省成都市龙泉驿区,由华侨城集团投资建设、中鼎世纪工程设计有限公司设计。总用地面积85461平方米,总建筑面积170922平方米,容积率2.0、建筑密度55%。
一期工程于2014年建成;二期工程于2019年建成,三期仍在持续开发中。是一个典型的依托原有古镇资源新建旅游地产属性的商业街项目。
当年的设计探索得以实施,对今天的城市开发和乡村建设仍然有一定意义。




▲洛带中国艺库一期街景效果图
1
新建街区&古镇老街
如何处理二者关系?
洛带古镇总人口的90%是客家人,客家民居、习俗等得以完整保存,素有“中国西部客家第一镇”之称,是成都有名的古镇游名片,最多日游客量有12万人。洛带中国艺库项目紧邻古镇老街。

▲洛带古镇老街游客密度分析图
新建街区与古镇原街区的关系是本设计的难点,也是项目成功的关键。
本设计引用游牧空间理论提出具体的设计主张,回答本项目的最核心设计问题,即如何处理新旧街区之间的关系?新街区以什么样的形态和空间来呈现?


▲洛带中国艺库一期规划设计鸟瞰效果图
2
引用游牧空间理论
塑造活力城市生活
游牧空间理论强调城市空间和功能设置的非均质化,像一个自然发生的城镇一样,真实且多样,对功能有更强的适应性。游牧空间理论体现在以下几点:
1、建筑的内部空间和形态设计不是均质的(建筑构成问题)
2、建筑的组合方式不是均质的(城市构成问题)
3、大部分人归属于不同样的阶级身份的社会,表现为不均质(阶级构成问题)

▲游牧空间设计意向图
许多城市建筑与其他城市建筑相比较具有个性特征,表现为不均质(同一性、地域性的问题)。
“游牧”的城市空间,在某些方面印证了新都市主义的城市主张,有助于塑造丰富有活力的城市生活。

▲游牧空间设计意向图
3
借势依托旧街区
补充式生长
借助游牧空间理论,设计团队提出以下几点认识,希望可以解决当今在城市大开发的形势下,以及现有土地政策的框架内,单一快速的建造模式对城市原有形态的破坏。

▲洛带中国艺库二期效果图
1、新街区对旧街区是借势依托关系,利用洛带古镇已形成的品牌和知名度,和古镇吸引的大量人流为新街区的业态经营提供有利条件。

▲洛带中国艺库二期B区湖面人视图
2、新街区是对原街区的在各个层面上的补充。
业态的补充——由低端的单一特色商业,变为中高低端相结合的商业有创意的,艺术特色的商业。
建筑形态的补充——由原汁原味的传统民居、小体量、变化少,转变为吸收传统元素的现代建筑,符合现代业态的较大体量,全方位的城市设计提供丰富的城市空间。
新建街区不能是古镇的简单复制或延续,是补充式的生长。

▲新旧复合图丨古镇现状,街道空间线性单一,沿街界面单一,业态地段,小吃为主。
4
三大策略
助力传统与现代完美结合
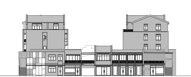
策略一:杂糅多种建筑风格,新街老街相得益彰
有一种声音,在当时占多数,策略是依托真实的或者假想的古镇资源,修旧如旧,创造出真真假假的古镇场景。
还有一种意见,希望洛带中国艺库的设计用两三种或者三四种不同的模块进行组合,形成相对丰富的商业形态。这样可以让施工图工作量可控,现场施工也会容易一些。

▲洛带中国艺库二期湖面人视图

▲洛带中国艺库一期效果图
而设计团队的目标,畅想的场景,都是一种自然的小镇生活场景。这种场景是有时间沉淀的,有层次的,由多个主体影响,形成的多元复杂的有机整体。难点在于如何在单一操作主体,短时间完成任务的情况下,形成那种感人的自然感。

▲洛带中国艺库二期B区湖面人视图
设计团队的做法,是将在不同的空间和时间维度上的元素并置,组合成一个形态上完全没有雷同和复制的小街区。


▲洛带中国艺库一期效果图
客家文化本身就是多元杂糅的,古镇本身就并列着四川民居和民国的西洋建筑风格。设计团队又加入了纯现代手法的建筑元素。

▲洛带中国艺库二期B区酒店人视图
城市的魅力在于多种信息的积累和传递,将属于不同时代的文化场景并置,把多元的建筑元素杂糅在一起,并不会与古镇不和协调,相反会使新街区与老街区相得益彰,在更大程度上吸引人流,激发街区活力。

▲洛带中国艺库二期B区酒店人视图
策略二:多种空间组合,消解用地尺度
传统小镇的肌理,有很多种处理大进深尺度的方法。现代的商业街业态也是多种多样,对空间的需求也是多层次的。所以有很多种空间组合去消解大小不同的用地尺度。

▲街道空间组合分析图
策略三:吸收地方文化元素,重构立面
标志节点建筑的设计,吸收四川极具地方特色的建筑文化元素,运用现代手法对其进行组合重构,本策略的关键在于恰当地选择有代表性和操作性的文化要素,以及如何重构,做到既当代又融合传统。
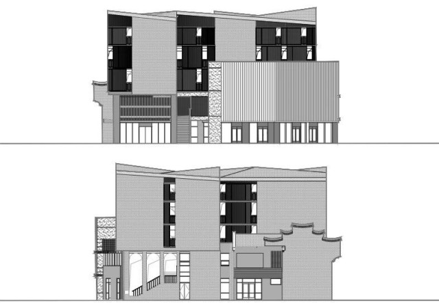
1#楼

▲1#意向图

▲1#透视图丨立面构思元素:山墙的穿午构架,山地古建层叠的屋面,各式古建花窗。
8#楼

▲8#意向图


▲8#透视图丨立面构思元素:川西民居丰富的屋顶构成,客家土楼。
其他单体

▲2#剖面图和透视图

▲3#剖面图和透视图

▲4#剖面图和透视图

▲5#剖面图和透视图

▲6#剖面图和透视图

▲7#剖面图和透视图
5
专家把脉
古建部分达到高完成度
经过甲方、施工总包以及现场的古建专家的共同努力,项目以一种接地气的方式努力生长出来。项目完成度差强人意,最大的限制因素是成本控制。


▲洛带中国艺库二期B区酒店人视图
建设过程中,甲方聘请的古建专家,在现场控制古建部分的实施,对设计公司无法表达的古建做法和细节进行把控,按照传统做法进行细化和发挥,使项目的古建部分达到了很高的完成度。

▲洛带中国艺库二期效果图
6
四年沉淀
洛带艺库持续生长
经过四年去拍摄项目照片,我们见到一个很自然贴切的融入古镇风貌的商业街区。像是不同时期不同的业主,按照自己需求建设的房子,组成了一个仿佛可以自己新陈代谢的街区,很难描述这个风貌与自然生长的街道区别在哪里。


▲洛带中国艺库一期现状实拍图
当然,时间会给一切带来印记,最终都会以某种方式自然地融入场景里,但是我们认为本项目的设计策略,是在当今的土地和开发政策下,从一开始,就可以实现街区自然感的较好的方式。


▲洛带中国艺库一期现状实拍图
现在,城市扩张还在继续,各种巨大的开发计划仍然在落地开花。成都市区的版图,已非前几年可比,周边的休闲景区仍然充满了天性休闲的成都市民。


▲洛带中国艺库一期现状实拍图
在洛带古街边上,艺库项目继续以一种积极的市井感、放松的态度,蒙着时间的印记,继续生长着。
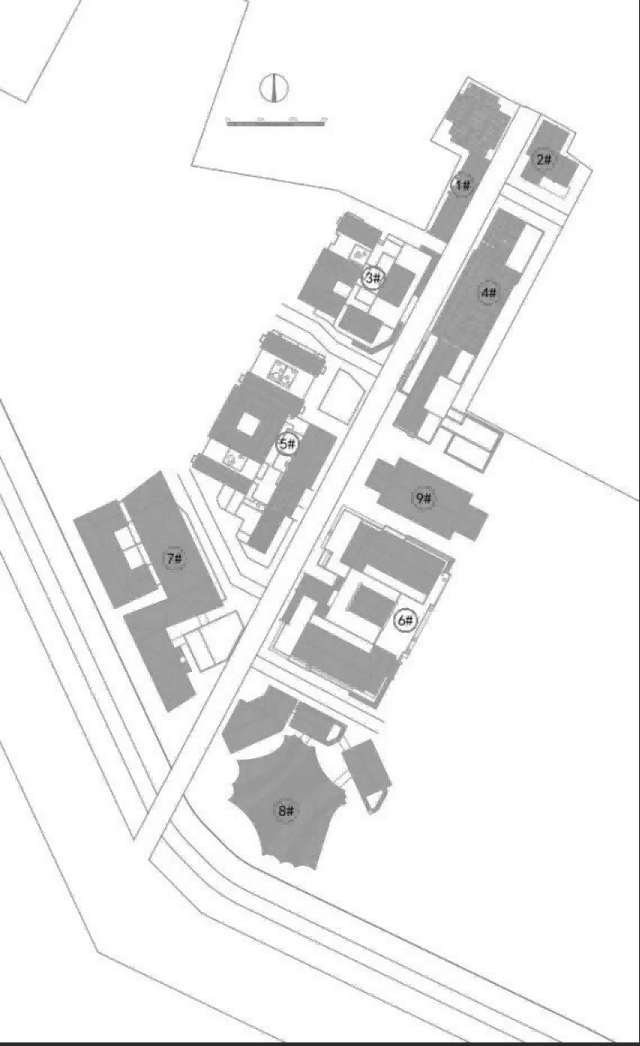
项目图纸

▲1# - 8#总平图


▲1#剖面图

▲2#剖面图

▲3#剖面图

▲4#剖面图

▲5#剖面图

▲6#剖面图

▲7#剖面图


▲8#剖面图


▲13#剖面图